Retail
121 Madison Avenue
Between 30th & 31st Streets
Listing Details
Listing Type
Retail
Total SF
2,900 SF
Possession
Immediate
Listing Details
• Prime NoMad location
• Excellent visibility
• Great frontage
• Close proximity to the 33rd Street subway station
Available Spaces
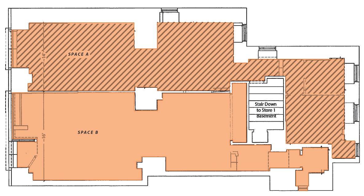
Ground Floor (Space A)
1,300 SF
Frontage
14'
Asking Rent
Upon Request
Basement (Space A)
500 SF
Ground Floor (Space B)
1,100 SF
Frontage
16'
Asking Rent
Upon Request
Location Details
Neighborhood
Nomad
Near By
- Ivar, Frances Valentine, Still Here, Sid & Ann, Mashburn, Raplh Lauren, Zimmerman, Alexander Cohane, Lanvin, Balenciaga, Paige, Christian Louboutin, & many more!
Transportation
R, W, 6





/-73.984485,40.745331,12.5/805x635@2x?access_token=pk.eyJ1IjoiYXphaXN0dWRpb3MiLCJhIjoiY2pwYWQ4ZDI2MDU5azNxbGVnNzFvOTI1OSJ9.voD0NzPueOQQbXnk6bJz9A)


