Retail
125 Chrystie Street
Corner of Broome Street
Listing Details
Listing Type
Retail
Total SF
2,918 SF
Possession
Q2 2026
Listing Details
• All uses considered
• Situated at the base of luxury residential apartments
• High foot traffic area
• Dense residential neighborhood
Available Spaces
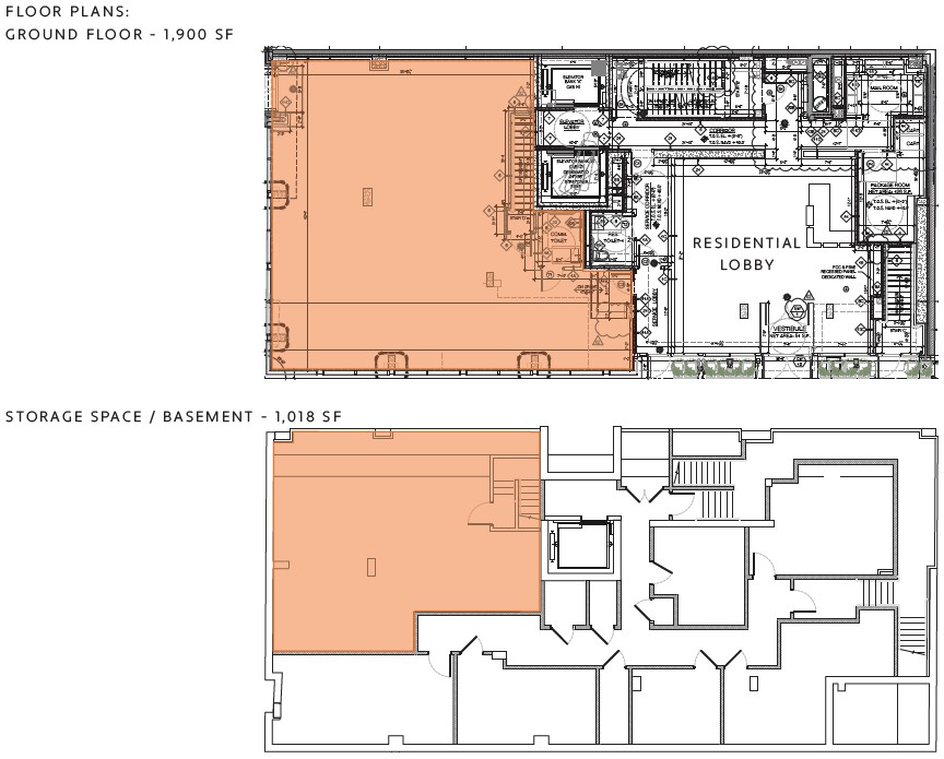
Ground Floor
1,900 SF
Frontage
95' Wraparound
Ceiling Height
14'
Asking Rent
Upon Request
Basement (Storage )
1,018 SF
Location Details
Neighborhood
Lower East Side
Near By
- Whole Foods, Extra Butter, La Colombe, Plantshed, Vince, Moxy Hotel, F45, The Butcher’s Daughter, Milk Bar, Public, Solidcore, Van Leeuwen, Buck Mason, Everlane, Supreme, Diptyque, Tombolo, Cafe Gitane, & many more!
Transportation
B, D, J, Z




/-73.993434,40.719306,12.5/805x635@2x?access_token=pk.eyJ1IjoiYXphaXN0dWRpb3MiLCJhIjoiY2pwYWQ4ZDI2MDU5azNxbGVnNzFvOTI1OSJ9.voD0NzPueOQQbXnk6bJz9A)


