373 East 183rd Street
Fordham Heights, Bronx
Retail
373 East 183rd Street
Between Webster Avenue & East 184th Street
Listing Details
Listing Type
Retail
Total SF
4,777 SF
Possession
Immediate
Listing Details
• New Development
• ADA compliant with ramp
• Situated at the base of 184 unit residential building
• Dense commercial/residential area
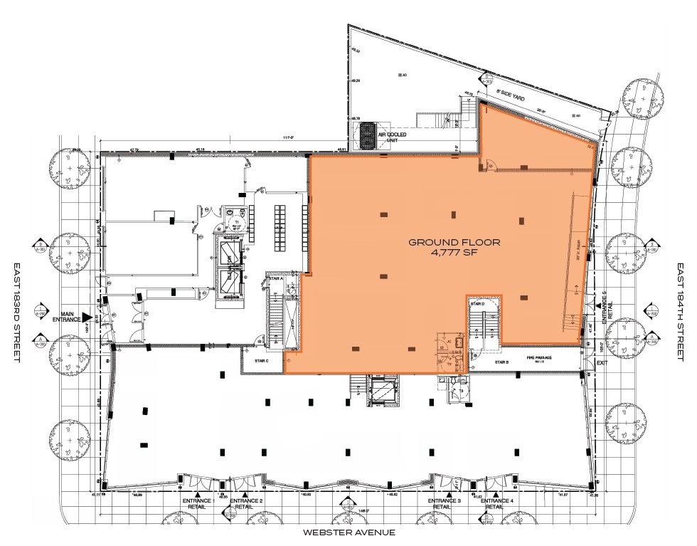
Available Spaces
Ground Floor
4,777 SF
Frontage
65'
Ceiling Height
14'
Asking Rent
Upon Request
Location Details
Neighborhood
Fordham Heights
Near By
- Applebee’s, Target, Marshalls, JD Sport, Five Below, GAP, Chick-fil-A, Burlington, The Children’s Place, Wingstop, Bank of America, Planet Fitness, Snipes, Dunkin’
Transportation
B, D, 4, BX41



/-73.895804,40.856599,12.5/805x635@2x?access_token=pk.eyJ1IjoiYXphaXN0dWRpb3MiLCJhIjoiY2pwYWQ4ZDI2MDU5azNxbGVnNzFvOTI1OSJ9.voD0NzPueOQQbXnk6bJz9A)


