374 East Fordham Road
Fordham, Bronx
Retail
374 East Fordham Road
Between Webster & Marion Avenue
Listing Details
Listing Type
Retail
Total SF
2,750 SF
Possession
Arranged
Listing Details
• Former Beauty Zone
• Excellent visibility in the heart of Fordham Center
• High foot traffic area in dense residential neighborhood
Available Spaces
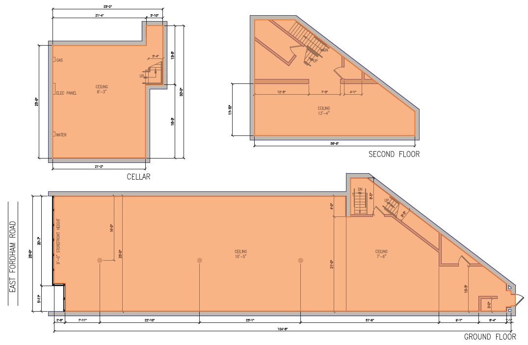
Ground Floor + Basement & Mezzanine
2,750 SF
Frontage
20'
Ceiling Height
12'
Asking Rent
Upon Request
Location Details
Neighborhood
Fordham
Near By
- CityMD, Old Navy, McDonald’s, Taco Bell, KFC, Checkers, Walgreens, Wing Stop, TJ Maxx, Applebee’s, Chipotle, VIM, Rainbow, Claire’s, Dunkin’, GAP, Planet Fitness, Best Buy, Popular Bank, Krispy Kreme, Burlington, Little Caesar’s, Starbucks, Target, Foot Locker, Jimmy Jazz, Pollo Campero
Transportation
B, D




/-73.892329,40.861693,12.5/805x635@2x?access_token=pk.eyJ1IjoiYXphaXN0dWRpb3MiLCJhIjoiY2pwYWQ4ZDI2MDU5azNxbGVnNzFvOTI1OSJ9.voD0NzPueOQQbXnk6bJz9A)


