186 Greenpoint Avenue
Greenpoint, Brooklyn
Retail
186 Greenpoint Avenue
Between Leonard & Eckford Streets
Available Spaces
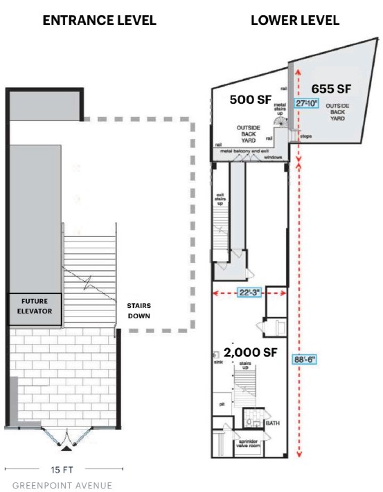
Lower Level
2,000 SF
Frontage
22'
Ceiling Height
12'
Asking Rent
Upon Request
Backyard Space
1,155 SF
Listing Details
Listing Details
• Dense residential area
• High foot traffic area
Listing Type
Retail
Total SF
3,155 SF
Possession
Immediate
Location Details
Neighborhood
Greenpoint
Near By
- Popeye’s, McDonald’s, Dunkin’, Starbucks, Oxomoco, C-Town Supermarket, CVS, Big Night, Kearny Bank, Crunch Fitness, Word books
Transportation
G





/-73.952887,40.730053,12.5/805x635@2x?access_token=pk.eyJ1IjoiYXphaXN0dWRpb3MiLCJhIjoiY2pwYWQ4ZDI2MDU5azNxbGVnNzFvOTI1OSJ9.voD0NzPueOQQbXnk6bJz9A)





