Retail
190 West 231st Street
Between Broadway & Albany Crescent
Available Spaces
Ground Floor
800 SF
Frontage
11'
Ceiling Height
11.5'
Asking Rent
Upon Request
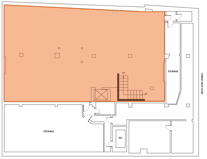
Selling Lower Level
7,700 SF
Ceiling Height
10.5'
Listing Details
Listing Details
• Lower level retail space with strong cotenancy
• Largest retail space available in the neighborhood
• High ceilings and ample storage space
• Private lobby with convenient elevator access
Listing Type
Retail
Total SF
8,500 SF
Possession
Immediate
Location Details
Neighborhood
Kingsbridge
Near By
- Kentucky Fried Chicken, Wingstop, Boost Mobile, Eterprise, IHOP, Dunkin’, Metro by T-Mobile, Chase, Chipotle, Walgreens, Foodtown, Citibank, MattressFirm, Staples, Papa John’s, UPS Store, Ponce bank, Carter’s, Aldi
Transportation
1



/-73.904402,40.87853,12.5/805x635@2x?access_token=pk.eyJ1IjoiYXphaXN0dWRpb3MiLCJhIjoiY2pwYWQ4ZDI2MDU5azNxbGVnNzFvOTI1OSJ9.voD0NzPueOQQbXnk6bJz9A)





