Retail
280 Bowery
Between East Houston & Prince Streets
Available Spaces
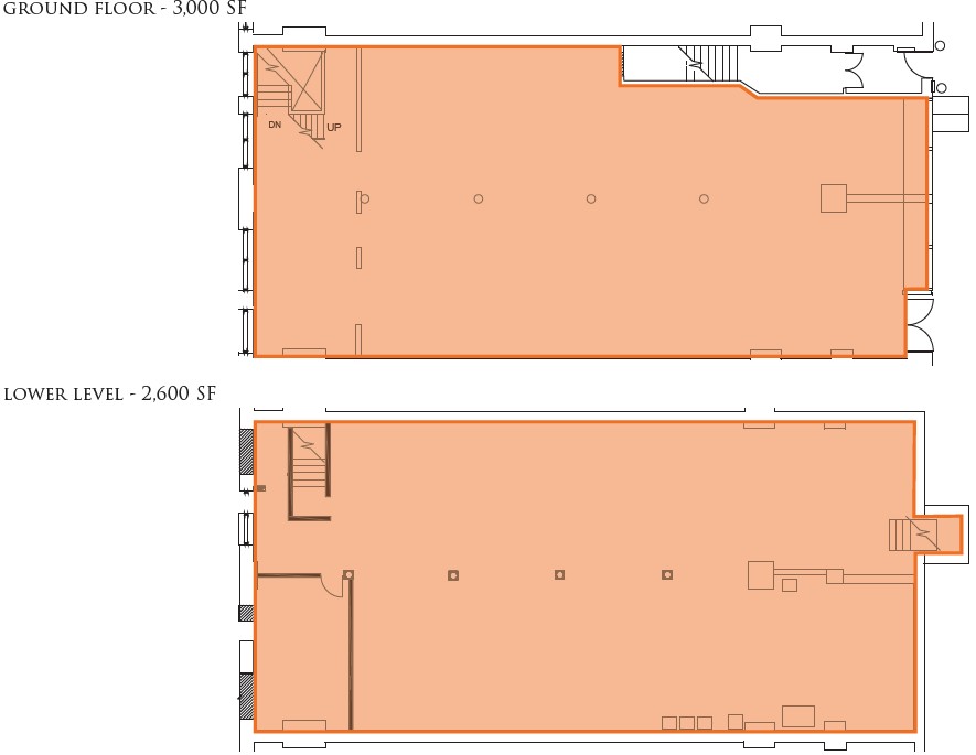
Ground Floor
3,000 SF
Frontage
33'
Ceiling Height
14'
Asking Rent
Upon Request
Listing Details
Listing Details
• All uses considered
• High foot traffic area
• Dense residential neighborhood
Listing Type
Retail
Total SF
3,000 SF
Possession
Immediate
Location Details
Neighborhood
Nolita
Near By
- SUPREME, Russ & Daughters, Whole Foods, Solidcore, Spicy Moon, Credo, Bari, Plantshed, Forsythia, Bank of America, & more!
Transportation
6, B, D, F, M, R, W, J, Z
Similar Listings

/-73.992999,40.723912,12.5/805x635@2x?access_token=pk.eyJ1IjoiYXphaXN0dWRpb3MiLCJhIjoiY2pwYWQ4ZDI2MDU5azNxbGVnNzFvOTI1OSJ9.voD0NzPueOQQbXnk6bJz9A)





